Residential Complex Lichtenreuth

All projects
  • Year: since 2021
  • Category: Neighborhood development, New construction
  • Use: Reside
  • Construction: Massive
  • More details
    Scope
    LP 1 - 5 

    Location
    Brunecker Straße
    Nürnberg-Lichtenreuth

    Gross Floor Area
    ca. 11.000 m² 

    Client
    CV Projektentwicklung GmbH

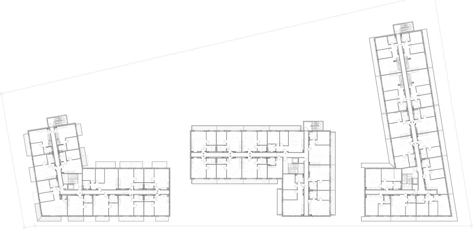
A new residential complex is being built in Nuremberg Lichtenreuth, consisting of three houses with a total of 128 apartments. The arrangement of the houses and their urban relationships to each other establishes a strong sense of identity. This creates space for large courtyards and green areas for the residents between the buildings.

Architectural Concept

Each building has its own architectural language, but together they form a coherent ensemble. The floor plans of the apartments are individually designed and impress with their different typologies, structures and high quality of use. This allows for a lively mix of users.

Each apartment has generous balconies, terraces or roof outlets. As a result, the buildings not only retain their value on the inside, but also on the outside.