Wohnanlage Lichtenreuth

Alle Projekte
  • Jahr: seit 2021
  • Kategorie: Quartiersentwicklung, Neubau
  • Nutzung: Wohnen
  • Konstruktion: Massiv
  • Mehr Details
    Leistungen                              
    LP 1 - 5 

    Standort
    Brunecker Straße
    Nürnberg-Lichtenreuth

    Bruttogeschossfläche
    ca. 11.000 m² 

    Auftraggeber
    CV Projektentwicklung GmbH

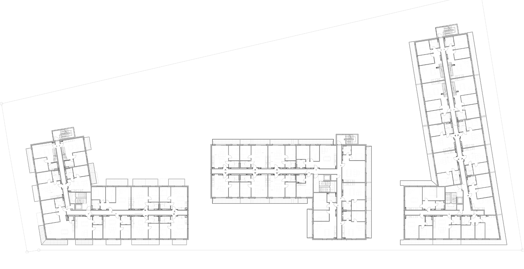
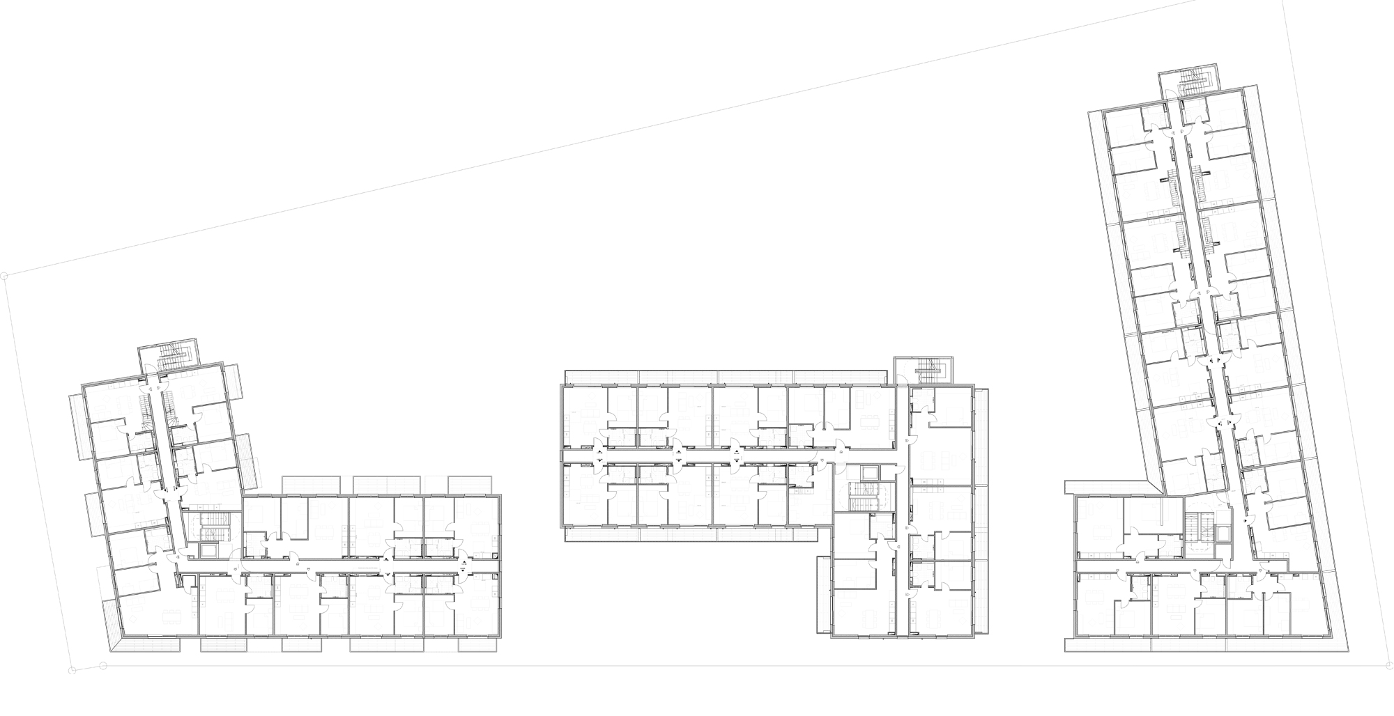
In Nürnberg Lichtenreuth entsteht eine neue Wohnanlage, bestehend aus drei Häusern mit insgesamt 128 Wohnungen. Die Anordnung der Häuser und deren städtebauliche Bezüge zueinander ist identitätsstiftend. Dadurch wird Platz für große Höfe und Grünflächen für die Bewohner zwischen den Gebäuden geschaffen.

Architektonische Konzeption

Jedes Haus weist eine eigene Architektursprache auf, gemeinsam bilden diese ein zusammenhängendes Ensemble. Die Grundrisse der Wohnungen sind individuell ausformuliert und bestechen durch verschiedene Typologien, Strukturen und hohe Nutzungsqualitäten. Damit wird eine lebendige Nutzermischung ermöglicht.

Jeder Wohnung sind großzügige Balkone, Terrassen oder Dachaustritte zugeordnet. Die Gebäude unterliegen damit nicht nur innen, sondern auch außen einer hohen Werthaltigkeit.