European Patent Office

All projects
  • Year: since 2016 – 2017
  • Category: Revitalization, Interior Design
  • Use: Other use, Office
  • Construction: Massive
  • More details
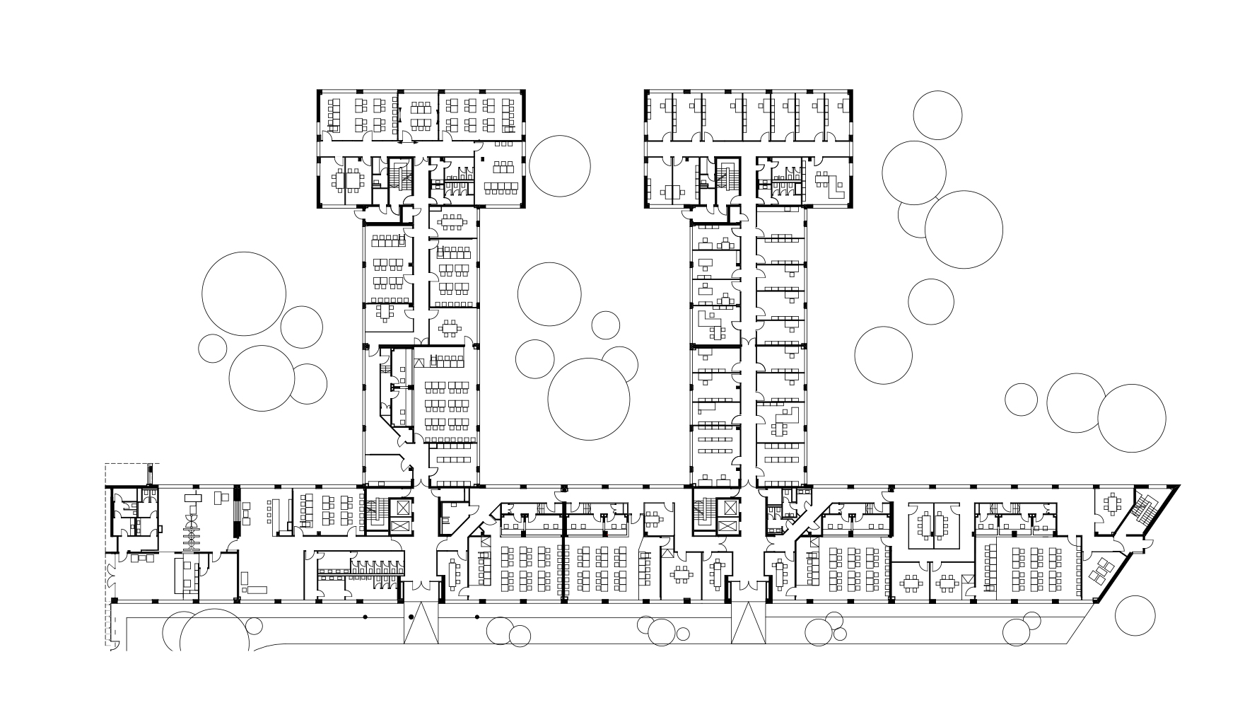
    Scope
    LP 1 - 8 

    Location
    Richard Reitzner Allee 8
    München

    Gross Floor Area
    ca. 15.000 m² 

    Client
    Konzern Versicherungskammer 

The European Patent Office was looking for new office space for its Board of Appeal unit, as the main building in the city center no longer offered enough space. We then developed several site analyses and concepts for various commercial properties from the VKB portfolio for the Versicherungskammer Bayern. Due to the convincing concept and other advantages of the location, such as the proximity to the European School, the property in Richard Reitzner Allee was chosen.

Concept

The design objective was a comprehensive reorganization of the building. In order to meet the special usage requirements of the European Parliament, the space was divided into three areas. A public reception and waiting area, a semi-public area with hearing rooms, party areas and waiting zones, and a non-public area with administration, presidential area, judges' and lawyers' rooms.

Inner Organization

The first floor houses a total of ten hearing rooms with special communication technology and interpreting booths.There are also various meeting rooms, party areas and a separate area for the administration.The appeal chambers are located on the two upper floors and the presidential area is assigned a separate wing on the second floor.