Europäisches Patentamt

Alle Projekte
  • Jahr: seit 2016 – 2017
  • Kategorie: Revitalisierung, Interior Design
  • Nutzung: Sonstige Nutzung, Büro
  • Konstruktion: Massiv
  • Mehr Details
    Leistungen
    LP 1 - 8 

    Standort
    Richard Reitzner Allee 8
    München

    Bruttogeschossfläche
    ca. 15.000 m² 

    Bauherr
    Konzern Versicherungskammer 

Für seine Beschwerdekammereinheit suchte das Europäische Patentamt neue Büroflächen, da das Hauptgebäude in der Innenstadt nicht mehr genug Platz bot. Daraufhin erarbeiteten wir für die Versicherungskammer Bayern mehrere Standortanalysen und Konzepte für verschiedene Gewerbeimmobilien aus dem VKB-Portfolio. Aufgrund des überzeugenden Konzeptes und weiterer Standortvorteile, wie die Nähe zur Europäischen Schule, fiel die Wahl auf die Immobilie in der Richard Reitzner Allee.

Konzeption

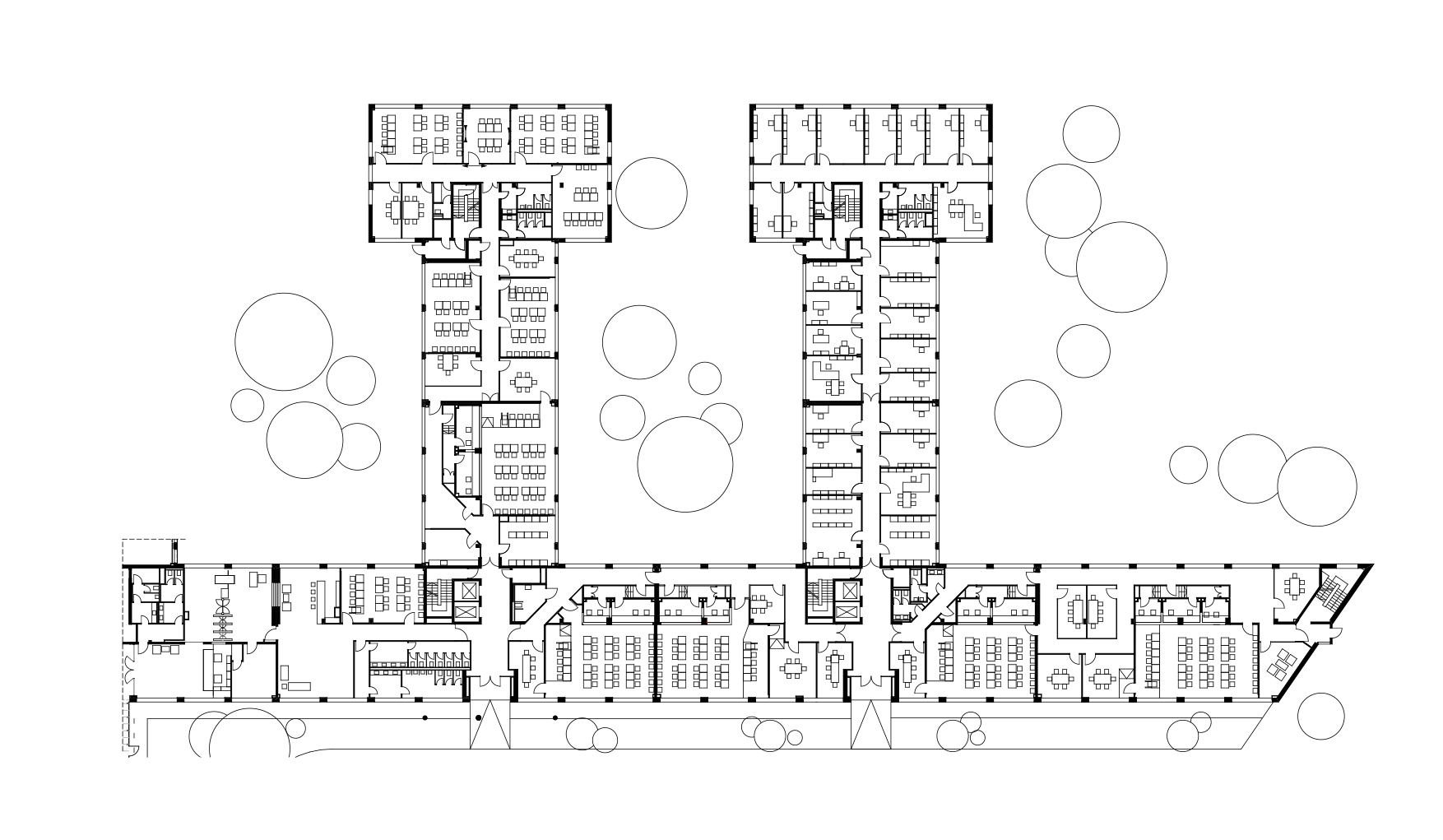
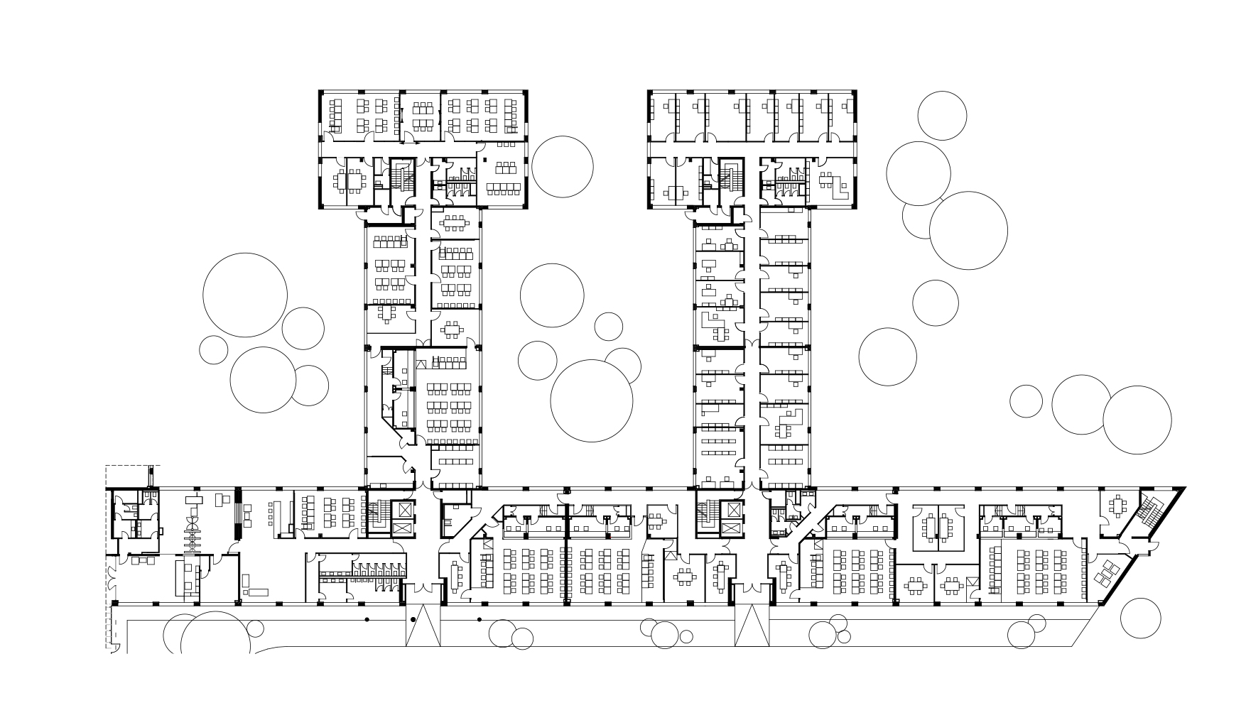
Ziel der Planung war eine umfängliche Neuorganisation des Gebäudes. Um den speziellen Nutzungsanforderungen des Europäischen Parlaments gerecht zu werden, wurde die Fläche in drei Bereiche aufgeteilt. Ein öffentlicher Empfangs- und Wartebereich, ein halböffentlicher Bereich mit Verhandlungssälen, Parteibereichen und Wartezonen, sowie ein nichtöffentlicher Bereich mit Verwaltung, Präsidentenbereich, Richter- und Anwaltszimmern.

Innere Organisation

Im Erdgeschoss sind die insgesamt zehn Verhandlungssäle mit spezieller Kommunikationstechnik und Dolmetscherkabinen untergebracht. Zudem gibt es verschiedene Besprechungsräume, Parteibereiche und einen separaten Bereich für die Verwaltung. Die Beschwerdekammern sind in den beiden Obergeschossen angeordnet und der Präsidentenbereich bekommt im zweiten Obergeschoss einen separaten Flügel zugeordnet.

Diese Website verwendet Cookies.
Detailierte Informationen zum Datenschutz finden Sie auf der Seite Datenschutz


Diese Website verwendet Cookies.

Wir verwenden Cookies, um Inhalte und Anzeigen zu personalisieren, Funktionen für soziale Medien bereitzustellen und unseren Datenverkehr zu analysieren. Außerdem teilen wir Informationen über Ihre Nutzung unserer Website mit unseren Partnern für soziale Medien, Werbung und Analysen. Diese Partner können die Informationen mit weiteren Daten kombinieren, die Sie ihnen bereitgestellt haben oder die sie im Rahmen Ihrer Nutzung ihrer Dienste gesammelt haben.