Notariat Marienplatz

Alle Projekte
  • Jahr: seit 2021 – 2022
  • Kategorie: Interior Design
  • Nutzung: Büro
  • Konstruktion: Massiv
  • Mehr Details
    Leistungen
    LP 1 – 8 

    Standort
    Marienplatz 25
    München

    Bruttogeschossfläche
    506 m² 

    Bauherr
    Notare Hutterer & Weiß

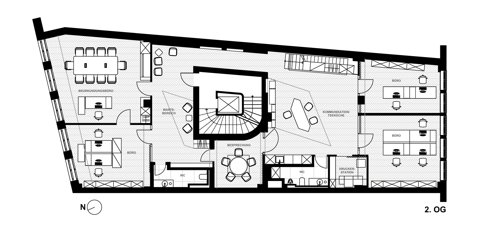
Das Notariat Hutterer & Weiß befindet sich am Marienplatz in München, direkt gegenüber dem Rathaus. Ziel der Umgestaltung der drei Etagen war es, ein einheitliches Erscheinungsbild aller Flächen zu erreichen und die Belichtungssituation zu optimieren.

Umstrukturierung

Durch die geschlossenen Büroräume konnte kein natürliches Licht in den Kernbereich eindringen. Zudem wurden die Flure im zweiten Obergeschoss durch eine ungenutzte Bibliothek in der Mittelzone zusätzlich verdunkelt.

Daher entschlossen wir uns für eine komplette Umstrukturierung des Hauptgeschosses. Die Innenwände wurden entfernt und eine offene Kommunikationszone mit Teeküche geschaffen. Die dunklen Flure wurden vollständig aufgelöst und dafür ein zusätzlicher Wartebereich für Kunden als Ergänzung der Kernflächennutzung ergänzt.

Die geschlossenen Wände der außenliegenden Büroräume wurden durch Glas-Trennwände ersetzt, um mehr Offenheit zu schaffen. Dadurch wird die neue Mittelzone zusätzlich mit natürlichem Licht erhellt und eine bisher nicht dagewesene Aufenthaltsqualität geschaffen. Bei Bedarf sorgen Vorhänge für Privatsphäre innerhalb der Büros.

Gestaltungskonzept

Bei der Planung der neuen Büroräume war es den Bauherren sehr wichtig, ihre Belegschaft mit einzubeziehen und deren Wünsche in die Gestaltung einfließen zu lassen. Sie wollten Räume schaffen, die auf die hervorragende Lage am Marienplatz Bezug nehmen. Dabei sollten die Materialien von entsprechender Qualität und Langlebigkeit sein.

Die Formsprache und das Farbkonzept ergeben ein repräsentatives und modernes Gesamtbild. Stilprägend sind dabei die polygonalen Formen, die sich in der monolithischen Bar, in der Decke und im großformatigen Fischgrätparkett wiederholen.

Die neu gestaltete Treppe bildet das verbindende Element aus Holz und Stahl über alle Etagen. Ein besonderes Augenmerk wurde auf die Lichtplanung gelegt, um die Räume in Szene zu setzen und eine einladende und angenehme Atmosphäre zu kreieren.

Die Neugestaltung wurde mit der Nominierung zum Best Workspace Award 2024 honoriert.