PEAK

All projects
  • Year: since 2013 – 2017
  • Category: Revitalization, Interior Design
  • Use: Office
  • Construction: Massive
  • More details
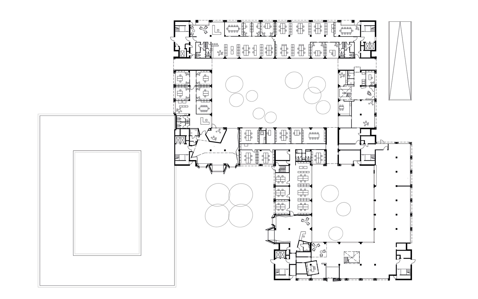
    Scope
    LPH 1-8

    Location
    Putzbrunner Straße 71
    München

    Gross Floor Area
    ca. 21.000 m²

    Client
    BBV Immobilien-Fonds

We focus on the revitalisation of existing buildings. With new utilisation concepts, an architectural upgrade and exciting interior design, we bring lost places back to life.

A striking concept was developed for the building, which had been vacant for some time, to make it attractive to the property rental market again. However, a general refurbishment was not possible due to budget restrictions.

Disruptive Appearance

Accessibility in the form of new, representative lobbies was redefined and an address was created. Their modern design deliberately contrasts with the existing situation. This is accentuated by three-dimensional façade elements, which are distributed sporadically over the entire façade. The stylistic disruptive elements are intended to stimulate the viewer's curiosity and encourage a closer examination of the building.

Architectural Concept

The renewal of the architecture is continued in expressive looking entrance foyers and public areas of the building. Functionally, the building is divided into flexibly usable units. Through diverse usage concepts, the building forms a new focal point within the surrounding neighborhood. The landscape concept complements this claim with a modern design language. Numerous passageways allow the user to walk through the building on the first floor level.

Interior Design

By intervening in the facade and building fabric, airy and representative foyers are created. The interior design also continues the deliberate contrast to the existing building. The expressive design language is expressed through the lines and choice of materials. A concept of light lines in the floor, ceilings and walls is part of the guidance system and gives the two-story space the appearance of a minimalist light installation.

The oversized façade elements unfold their effect inside through the contrasting concave shape in brilliant white and depict the new landscape architecture of the forecourt like a still life.

Spatial Impact

The color concept of white and light gray is given a futuristic touch by reflective metal panels. Bright yellow accents mark the main functions, such as access routes to the stairwells. The entire line management, whether gallery, light lines or joint pattern follow a common design language and lead the view through the room.