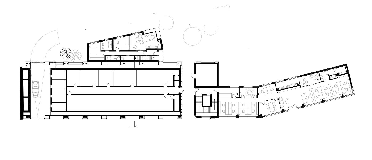
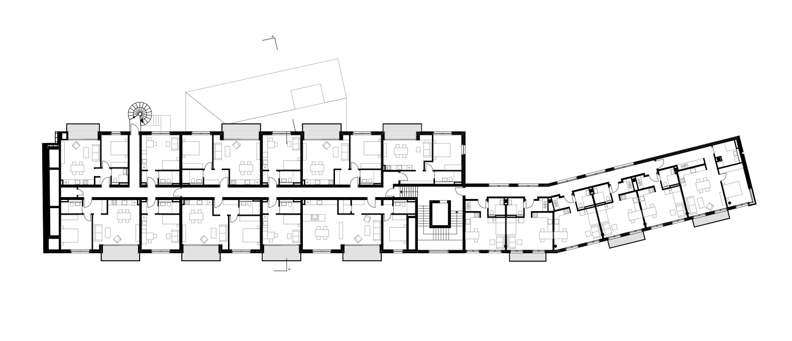
Durch die Revitalisierung der Gewerbeimmobilie in der Seitzstraße 16, wird neuer Wohnraum im beliebten Münchner Stadtteil Lehel geschaffen. Die Nähe zum Englischen Garten und Hofgarten ist identitätsstiftend für den Standort.
Wohngebäude Seitzstraße


- Kategorie: Revitalisierung
- Nutzung: Wohnen
- Konstruktion: Stahl
-
Mehr Details
Scope
LP 1–5
Location
Seitzstraße 16
München
Gross Floor Area
Vorher: 4.304 m²
Nachher: 6.504 m²
Client
Metropolian Liegenschaften GmbH
Die herausfordernde Bestandsstruktur der beiden postmodernen Gebäudeteile aus dem Jahr 1988 wurde zu Teilen vorsichtig zurückgebaut, um verbleibende Nutzungen nicht zu beeinträchtigen. Durch Umstrukturierungen und Erweiterungen wird Wohnraum geschaffen, welcher strukturell in die Gegebenheiten des Bestandes eingefügt wird.




Balkone, Loggien und begrünte Fassadenelemente lösen die monolithische Wirkung des Bestandes auf und bilden infolgedessen ein harmonisches Gesamtbild mit der Nachbarbebauung. Der bislang prägende Stahlskelettbau erfährt einen grundlegenden Wandel hin zu einem werthaltigen Stadtbaustein.
