Prime Tower

Alle Projekte
  • Jahr: seit 2019 – 2022
  • Kategorie: Revitalisierung, Interior Design
  • Nutzung: Büro, Sonstige Nutzung
  • Konstruktion: Massiv
  • Mehr Details
    Leistungen                              
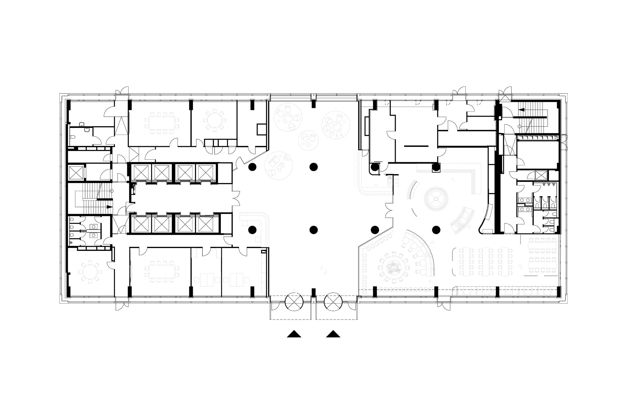
    LP 1 - 4
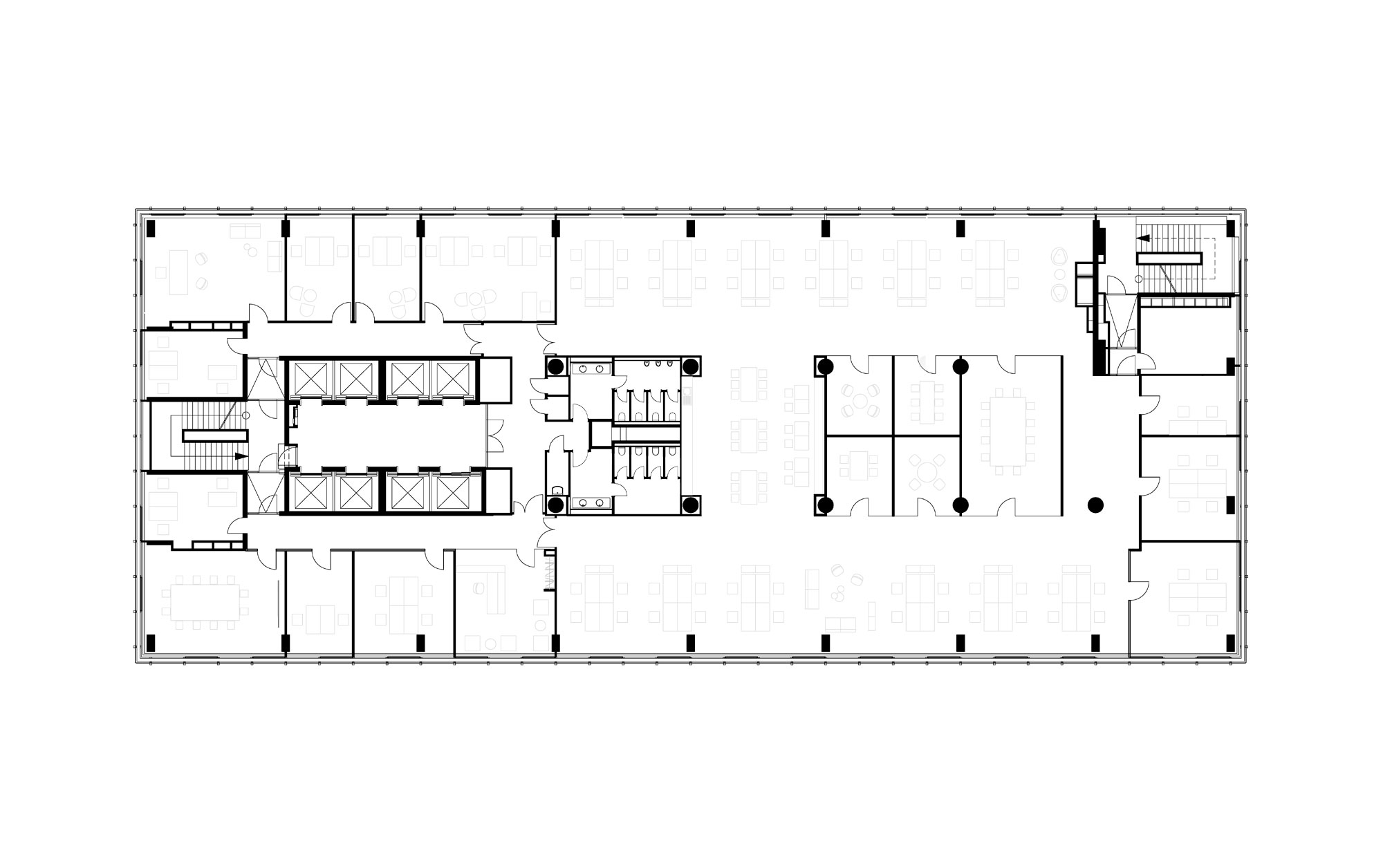
    Musteretage LP 5-8

    Standort
    Herriotstraße
    Frankfurt

    Bruttogeschossfläche
    ca. 24.000 m²

    Bauherr
    WealthCap

Im Frankfurter Lyoner Quartier konzipieren wir die Revitalisierung des Bürohauses an der Herriotstraße. Das mit 80m höchste Gebäude im Viertel wurde 2001 bereits saniert. Die klare Architektur ist geprägt durch eine vorgehängte Fassade aus Gussaluminiumplatten. Veränderte Nutzeranforderungen und ein Mieterwechsel erfordern eine Überarbeitung des Erscheinungsbildes von Foyer, der Erschließung und Kantine.

Gestaltungskonzept

Die Neugestaltung der öffentlichen Flächen ist angelehnt an die Entstehungszeit des Gebäudes. Anklänge an die Formsprache vergangener Jahrzehnte finden sich in wiederkehrenden Stilelementen wieder. Das Zusammenspiel von hellen Naturtönen und dunklen Holzelementen verleiht dem Ambiente schwerelose Eleganz. Klarer Blickfang ist die transparent wirkende Galerie im Foyer.

Interior Design

Durch die Öffnung der Gebäudestruktur entsteht eine großzügige, repräsentative Halle. Eine reliefartige Wandstruktur, kreisförmige Leuchtkörper und Terrazzoböden mit wegweisenden Messing-Linsen bilden raffinierte Gestaltungsdetails.

Auf Grundlade dieser architektonischen Leitlinien und des Gestaltungskonzeptes wurde eine Marketinglounge und ein Musterbüro umgesetzt.

Neben dem Olivetti Hochhaus ist der Prime Tower damit die zweite architektonische Ikone in Frankfurt Niederrad.