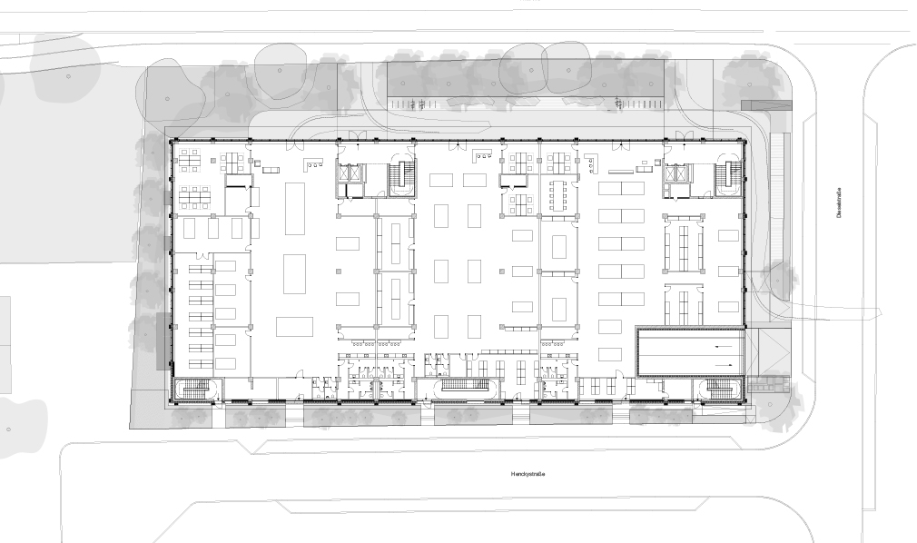
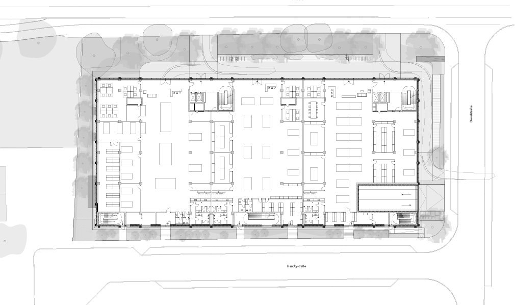
Das Projekt zeichnet sich durch eine klare Gebäudestruktur und Fassade aus. Das mit Sichtbeton und großen Glasflächen hervorgehobene Erdgeschoss schafft einen starken Bezug zum öffentlichen Raum und bietet offene Flächen für Maker Spaces und Kleingewerbe. Produktions- und Gewerbehallen kommen weitestgehend ohne Stützen aus und schaffen somit maximale Nutzungsflexibilität.
Geschäftshaus Triebstraße

- Kategorie: Neubau
- Nutzung: Büro, Sonstige Nutzung
- Konstruktion: Massiv
-
Mehr Details
Leistungen
LP 1 – 5
Standort
Triebstraße 36-40
München
Bruttogeschossfläche
ca. 11.000 m²
Bauherr
Concrete Capital

Fassasdengliederung
Ein ringförmig umlaufendes Vordach mit intensiver Bepflanzung gliedert das Gebäude horizontal und setzt die Obergeschosse vom Sockelgeschoss ab. In den Obergeschossen befinden sich großzügige Büroflächen.
Freiraum Design
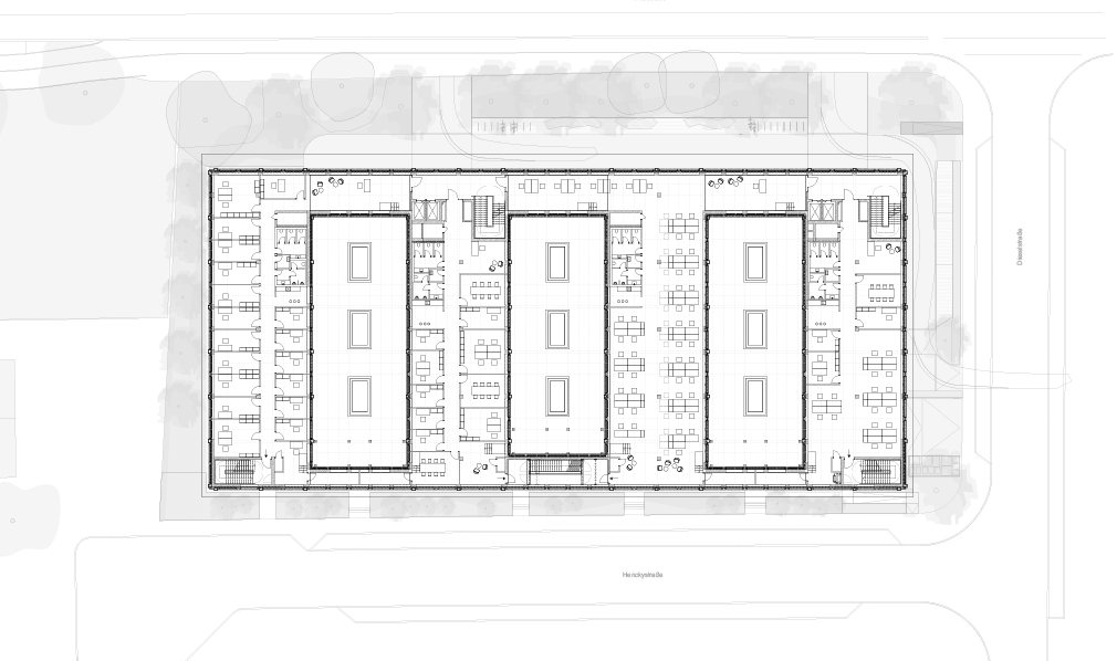
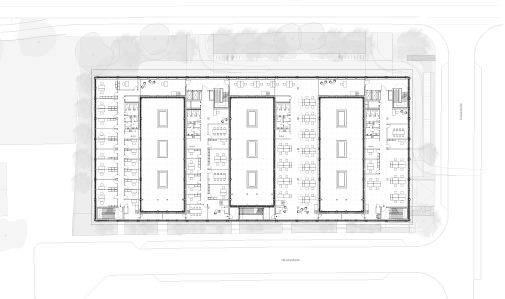
Um optimale Verhältnisse für die natürliche Belüftung und Belichtung zu schaffen, werden die Obergeschosse mit drei großen und intensiv begrünten Innenhöfen untergliedert und belichten durch die im Boden eingelassenen Oberlichter das Erdgeschoss.
Mit Holzbalkonen werden die Innenhöfe in allen Geschossen erlebbar gemacht. Das Dach bietet seinen Nutzern einen erlebbaren Naturraum inmitten eines urbanen Umfelds.
